Кожухотрубные испарители
Горизонтальные и вертикальные испарители из нержавеющей стали для теплообмена в агрессивных средахКожухотрубный испаритель изготовлен из прочной нержавеющей стали, благодаря чему отличается устойчивостью к коррозии и механической прочностью. Разработан для работы с чистыми и агрессивными средами. Оснащен компактной конструкцией, а также высокой производительностью теплообмена и способностью к сжатию. Испарители Kansa широко используются в отраслях с повышенными требованиями к гигиене производственных процессов, например, в фармацевтической, пищевой и химической промышленностях. Кожухотрубные испарители являются ключевым компонентом высокоэффективного теплообмена в чиллерах, тепловых насосах и системах промышленного охлаждения, гарантируя долгосрочную и стабильную работу оборудования.
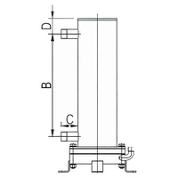
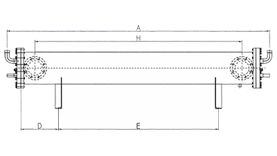
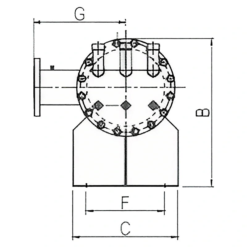
| Модель | Мощность компрессора | Размер соединения трубопровода | Габариты (мм) | |||||
| A | B | C | D | E | F | |||
|
|
1HP | DN15 | 550 | 370 | 40 | 50 | 193 | 193 |
|
|
2HP | DN20 | 550 | 370 | 40 | 50 | 212 | 212 |
|
|
3HP | DN25 | 550 | 370 | 40 | 50 | 235 | 235 |
|
|
4HP | DN25 | 550 | 370 | 40 | 50 | 255 | 255 |
|
|
5HP | DN25 | 600 | 420 | 40 | 50 | 285 | 285 |
|
|
6HP | DN25 | 600 | 420 | 40 | 50 | 285 | 285 |
|
|
7HP | DN25 | 600 | 420 | 40 | 50 | 305 | 305 |
|
|
8HP | DN25 | 650 | 475 | 40 | 60 | 305 | 305 |
|
|
10HP | DN40 | 650 | 455 | 50 | 70 | 330 | 330 |
|
|
12HP | DN40 | 650 | 455 | 50 | 70 | 330 | 330 |
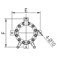
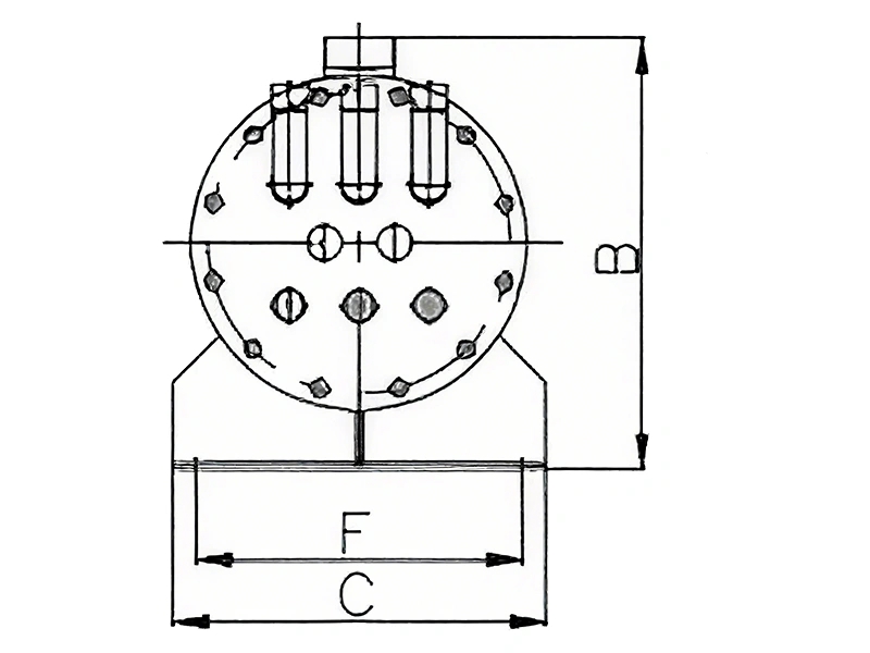
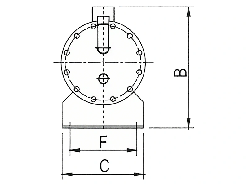
| Модель | Мощность компрессора | Размер соединения трубопровода | Габариты (мм) | |||||||
| A | B | C | D | E | F | G | H | |||
|
|
3HP | DN25 | 585 | 260 | 200 | 100 | 200 | 160 | 40 | 370 |
|
|
4HP | DN25 | 585 | 260 | 200 | 100 | 200 | 160 | 40 | 370 |
|
|
5HP | DN25 | 618 | 277 | 200 | 100 | 300 | 180 | 40 | 404 |
|
|
6HP | DN25 | 618 | 277 | 200 | 100 | 300 | 180 | 40 | 404 |
|
|
7HP | DN25 | 618 | 290 | 200 | 100 | 300 | 180 | 40 | 404 |
|
|
8HP | DN25 | 708 | 290 | 200 | 100 | 350 | 180 | 50 | 475 |
|
|
10HP | DN40 | 828 | 290 | 200 | 100 | 450 | 180 | 50 | 560 |
|
|
12HP | DN40 | 828 | 290 | 200 | 100 | 450 | 180 | 50 | 560 |
|
|
15HP | DN40 | 1118 | 290 | 200 | 175 | 600 | 180 | 50 | 860 |
|
|
20HP | DN50 | 1603 | 277 | 200 | 275 | 900 | 180 | 65 | 1320 |
|
|
25HP | DN50 | 1603 | 290 | 200 | 275 | 900 | 180 | 65 | 1320 |
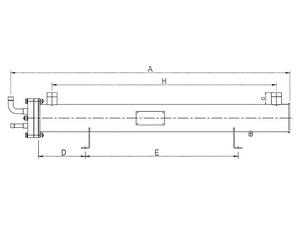
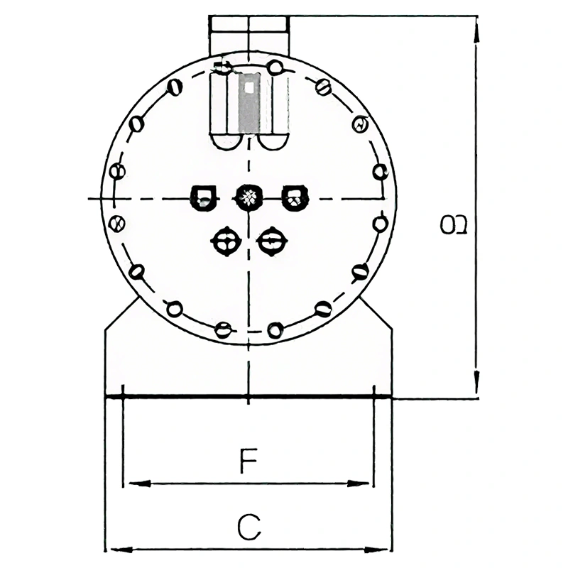
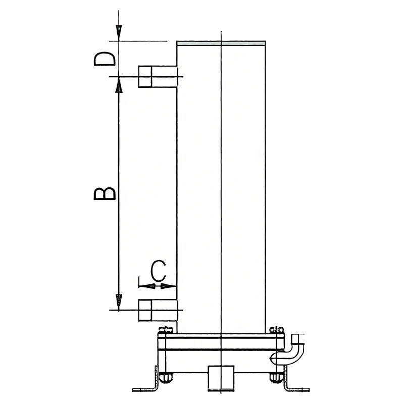
| Модель | Мощность компрессора | Размер соединения трубопровода | Габариты (мм) | |||||||
| A | B | C | D | E | F | G | H | |||
|
|
4HP*2 | DN25 | 708 | 290 | 200 | 100 | 350 | 160 | 50 | 475 |
|
|
5HP*2 | DN25 | 828 | 290 | 200 | 100 | 450 | 190 | 50 | 560 |
|
|
6HP*2 | DN25 | 828 | 290 | 200 | 100 | 450 | 160 | 50 | 560 |
|
|
7,5HP*2 | DN25 | 1118 | 290 | 200 | 175 | 600 | 190 | 50 | 860 |
|
|
10HP*2 | DN40 | 1603 | 277 | 200 | 275 | 900 | 180 | 65 | 1320 |
|
|
12HP*2 | DN40 | 1603 | 290 | 200 | 275 | 900 | 180 | 65 | 1320 |
|
|
15HP*2 | DN40 | 1603 | 290 | 200 | 275 | 900 | 180 | 65 | 1320 |
|
|
20HP*2 | DN50 | 1615 | 365 | 280 | 275 | 900 | 200 | 65 | 1320 |
|
|
25HP*2 | DN65 | 1615 | 436 | 320 | 275 | 900 | 280 | 65 | 1320 |
|
|
30HP*2 | DN65 | 1650 | 477 | 320 | 275 | 935 | 280 | 100 | 1335 |
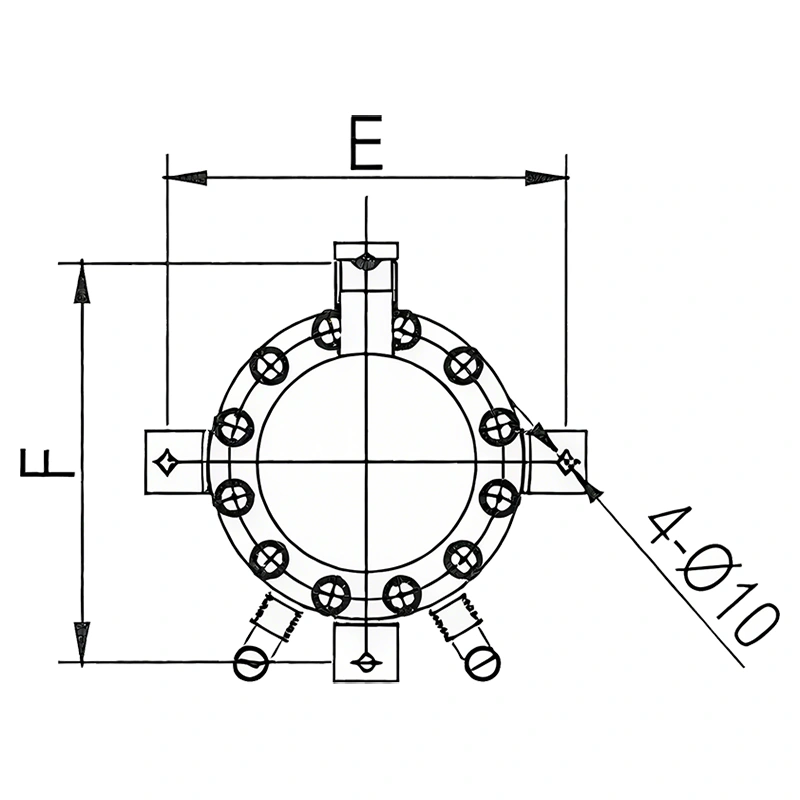
| Модель | Мощность компрессора | Размер соединения трубопровода | Габариты (мм) | |||||||
| A | B | C | D | E | F | G | H | |||
|
|
5HP*3 | DN40 | 1118 | 290 | 200 | 175 | 175 | 180 | 50 | 860 |
|
|
10HP*3 | DN50 | 1615 | 365 | 250 | 275 | 275 | 200 | 65 | 1320 |
|
|
12HP*3 | DN50 | 1615 | 365 | 250 | 275 | 275 | 200 | 65 | 1320 |
|
|
20HP*3 | DN65 | 1650 | 477 | 320 | 275 | 275 | 280 | 100 | 1335 |
|
|
25HP*3 | DN65 | 2315 | 477 | 320 | 275 | 275 | 280 | 100 | 1865 |
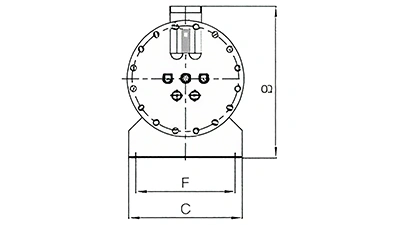
| Модель | Мощность компрессора | Размер соединения трубопровода | Габариты (мм) | |||||||
| A | B | C | D | E | F | G | H | |||
|
|
10HP*4 | DN50 | 1612 | 453 | 320 | 250 | 859 | 280 | 100 | 1160 |
|
|
12HP*4 | DN65 | 1612 | 468 | 320 | 250 | 859 | 280 | 100 | 1160 |
|
|
15HP*4 | DN65 | 1612 | 468 | 320 | 250 | 859 | 280 | 100 | 1160 |
|
|
20HP*4 | DN80 | 2326 | 468 | 320 | 250 | 1550 | 280 | 100 | 1870 |
|
|
25HP*4 | DN80 | 2578 | 468 | 320 | 250 | 1802 | 280 | 100 | 2122 |
|
|
30HP*4 | DN80 | 2578 | 508 | 320 | 250 | 1802 | 280 | 100 | 2122 |
| Модель | Мощность компрессора | Размер соединения трубопровода | Габариты (мм) | |||||||
| A | B | C | D | E | F | G | H | |||
|
|
12HP*5 | DN65 | 1612 | 482 | 320 | 250 | 859 | 280 | 100 | 1160 |
|
|
25HP*5 | DN100 | 2578 | 588 | 400 | 350 | 1802 | 350 | 350 | 2122 |
|
|
25HP*6 | DN100 | 3128 | 588 | 400 | 350 | 1802 | 350 | 350 | 2672 |
- Энергоэффективность
- Инновации
- Защита безопасности
- Производственная точность
-
на 25% выше эффективность теплообменаМедные трубы с внутренней резьбой -
на 20% выше теплопередачаВолнистые ребра теплообменника -
на 6% ниже общее энергопотреблениеЭлектронный расширительный клапан с PID-регулятором -
на 20% лучше распределение хладагентаОптимизированная система распределения хладагента -
на 10% лучше циркуляция воздухаОптимизированный воздушный поток -
на 20% ниже энергопотребление вентилятораАвтоматическое управление воздушным потоком
-
Испаритель из нержавеющей стали -
V-образный конденсатор -
Цилиндрический водяной бак -
Вентилятор с низким уровнем шума -
Контроллер с сенсорным экраном -
Современная система управления
-
Защита от перегрева -
Защита от короткого замыкания -
Самодиагностика -
Интеллектуальная защита от замерзания -
Сигнализатор низкого потока воды -
Сигнализатор низкого уровня воды -
Сигнализатор высокого/низкого давления -
Таймер включения/выключения
-
Прецизионная штамповка металлических листов -
Штампованные направляющие кольца для потока -
Роботизированная система гибки (Bystronic, Швейцария) -
Лазерная сварка -
Автоматизированная резка изоляционных материалов -
Автоматизированная сварка соединений
KANSA имеет более 20 лет опыта в производстве промышленного оборудования для охлаждения. Мы разрабатываем и производим промышленные чиллеры и оборудование для контроля температуры технологических процессов. Благодаря собственной производственной базе мы обеспечиваем стабильное качество, надежную работу и отличную стабильность температуры с отклонением не более ±0.05°C. Компания имеет сертификаты CE, ISO9001-2016, ISO45001 и другие международные сертификаты, поставляя обрудование более 70 000 клиентам по всему миру.













